

50 29th Street
$750,000
Features
- 2 Bath
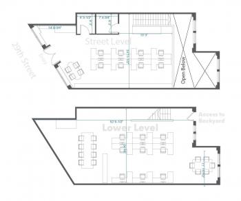
- 2,200 Sq Ft
Description
Rare opportunity to own a versatile commercial condo in a the crossroads of Noe Valley, Glen Park and Bernal! Situated within a vibrant…
More
Rare opportunity to own a versatile commercial condo in a the crossroads of Noe Valley, Glen Park and Bernal! Situated within a vibrant…
More
117 Greenwich Street
San Francisco, CA 94111
Lic 01862663
Office: 415.901.1700
Mobile: 415.830.0699